
Contents
パークトライアングルレジデンスのペントハウスを手に入れる・ALVEO
Lacation・Neighborhood
パークトライアングルレジデンスは下で青く塗りつぶされているトライアングル状の敷地にあります。

Location : 32nd Street corner 11th Avenue Brgy. Fort Bonifacio, Bonifacio, Taguig, 1634 Metro Manila, Phlippines
以下のように大型商業施設も数個立ち並んでおり、ここで毎日を送るにもちょっとした滞在でも困ることはなさそうです。
近隣施設
◆商業施設
- アヤラモールズパークトライアングル
- アップタウンモール
- ボニファシオ ハイストリート セントラル
- S&R メンバーシップショッピング
- Market! Market!
- メイバンクパフォーミングアートセンター
- キッザニアマニラ
◆教育施設・病院
- UPプロフェッショナルスクール
- デラサール大学 BGC キャンパス
- マニラインターナショナルスクール
- ブリティッシュ・スクール
- マニラ日本人学
- セントルークス医療センター
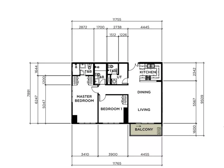
Pent house Floor Plan & Price
ペントハウスはコンドミニアムの最上階に位置するPremiumなお部屋。
弊社ではこのパークトライアングルレジデンスのペントハウスを特別にご案内できます。

- 階数:55階
- 間取り:2 Bedrooms
- 広さ:97平方m
- 価格:PHP 32,000,000
- お支払い:一括または10回払いのみ
Living Dining

ペントハウスからの眺めは下の動画がとても参考になります。ご覧になってみてくださいね。
パークトライアングルレジデンスの1~53階までの階層は下のとおりとなっており、今回ご案内しましたペントハウスは最上階にあるお部屋となっています。
Amenities


お問い合わせ&物件見学のご希望の方は
パークハウスレジデンスのご見学をご希望の方は以下でお知らせください。このコンドミニアムを含めさまざまな物件を内覧するツアーを開催しています。
現地法人とともにワンストップでお客様の不動産投資を強力にサポート致しますので安心してお任せ下さい。

お問い合わせは以下より承ります。
【当方は、相互の信頼関係を構築できる方を最優先しております。専門家の知見に対する軽視、あるいは一方的な搾取が確認された場合は、一切の通告なく接続を遮断いたします。】 Developper:Ayala land ALVEO
パークトライアングルレジデンスのディベロッパーはアヤラ財閥グループのアヤラランドブランドのアルベオ。
アヤラランドはフィリピンの不動産開発会社で、コンドミニアムだけでなくショッピングモールなどの複合施設のほか、ホテル事業・不動産管理など8つの事業が展開されています。
アヤラランドの不動産開発はアルベオ含め5つのブランドが展開されており、アルベオは高級価格帯です。
BellaVita Land Corp.

戸建て・平屋のみ
Amaia Land Corp.

リーズナブル
Alveo Land Corp.

上級ブランド
Ayalaland Premier.

最上級ブランド



