
| プロジェクト名 | The Launiu Ward Village(ラウニウ・ワードビレッジ) |
| 所在地 | 【HONOLULU・WARD VILLAGE】333 Ward Ave, Honolulu, HI 96814 USA |
| ディベロッパー | Howard Hughes Corporation |
| 竣工・完成 | 2027年後半 〜 2028年 予定 |
| 物件タイプ | ラグジュアリコンドミニアム |
| 平米単価 | 約$700,000〜 $4,000,000超 |
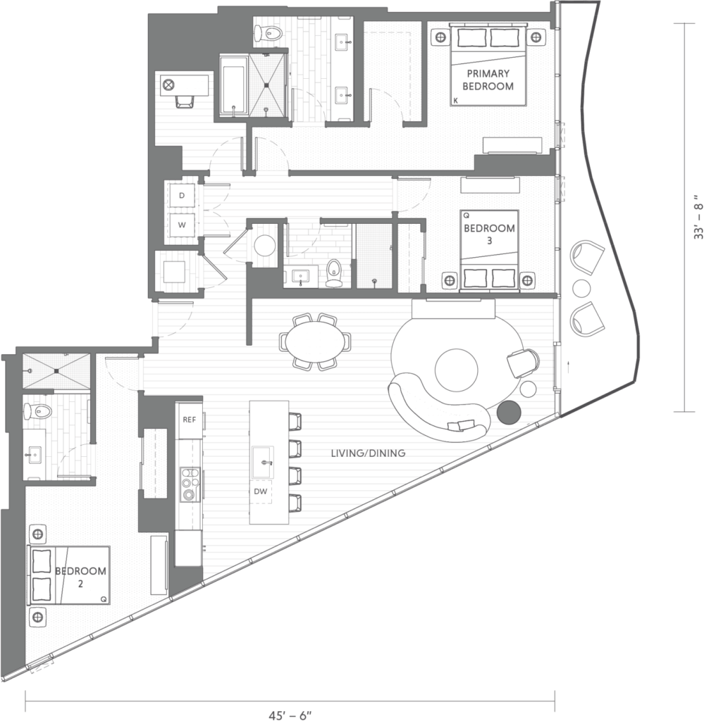
| 専有面積 | 約37㎡(Studio) 〜 約232㎡(3BR)超 |
| 表面利回り | 4.2% 〜 5.0% |
| 実行利回り | 1.5% 〜 2.5% |
| 支払いプラン | 契約時から着工までの間に、購入価格の2割を4段階程度に分けて段階的支払い。2027年の建物完成(登記)時に、残額8割を現金またはローン清算。 |
| 共有施設 | セキュリティ付き自転車置き場・ショップ・ブリーズウェイ・プール(3種)・エステ・グレートローン・デッキ(2面)・クラブルーム(5種)・ケータリングキッチン・BBQエリア・カバナ・キッズアリア |
| 周辺施設 | ホールフーズマーケットクイーン店・アラモアナビーチパーク・マジックアイランド・ケワロベイスン港・カカアコ地区の飲食店 |
ギャラリー




投資家判断情報:ワードビレッジで初の本格STUDIO
都市計画の成熟期:ワードビレッジは大規模再開発の第11期目成熟期。周辺の公園や商業施設が完成間近であることは、生活利便性の向上だけでなく、賃料相場を下支えするという実利に直結。
「都内2億」より「Launiu Studio」:都内の2億円クラスの区分マンションを検討していた層が、LauniuのStudio(1億円台〜)へ流れる現象が続く。これは弱くなった円よりもアメリカドル資産による資産防衛をする目的の方が強い。
希少性の逆転: 供給過多で差別化が難しい都内物件に対し、Launiuはワードビレッジ初の本格Studioという、これまでにない希少な組み合わせとなっている。
タイパ・コスパの最適解: 都内2億の「半分」の資金で、世界最高峰の再開発エリアのオーナー権(アメニティ利用権含む)を手にできる効率の良さが、富裕層に響く。
キャッシュフローの防衛: 面積が狭いStudioは、ハワイ投資の懸念点である高額な管理費や固定資産税を低く抑えられ、実質利回りの毀損を最小化できる。
「ワードビレッジへの入場券」としての価値: 1BRや3BRのオーナーと同じ豪華アメニティのみならず、ワードビレッジ区域内の所有権オーナーとしての権利を、最小の投資額で享受できる。
賃貸需要の鉄板性: ワードビレッジの賃貸需要は売り出せば即決まるほど需要が高い。
出口の広さ: 数億円の物件を買える層は限られるものの、1.5億円のStudioを狙う予備軍は世界中に存在するため、売りたい時にすぐ売れることがLAUNIUの真の投資価値。

LauniuのStudioが投資家を惹きつけるのは、室内面積の広さではなく、一歩外に出れば手に入る世界一級の利便性を1億円台で手に入れられるからです。室内は寝るための場所、リビングは目の前のアラモアナ・ビーチパーク。この割り切りが、最も効率の良いハワイ投資を実現します。
フロアプラン
アクセス


最前線ながら、波打ち際ではない位置
LAUNIUはアラモアナ通りを挟んでビーチパークと港に隣接しています。住所で言えば「オーシャンフロントラインの住所」ですが、遮蔽物なしの眺望ではありません。
目の前に先客:海との間にアラモアナ・ビーチパークという公園、そしてケワロベイスン港が位置しており、さらに将来的には隣接Block D & Eの区域に別のワードビレッジ高級タワーの建設が予定されています。ずっと視界を遮る物がないユニットは多くはないかもしれません。
Ultra-Luxury Oceanfront物件ではない:現地でもLauniuの位置づけをUltra-Luxury Oceanfront物件と同列には扱われていません。カカアコ地区としての利便性が注目されることが多く、都市と海が交わるロケーションという立ち位置です。
向き不向き
この物件が向く方
キャピタルゲインとインカムのバランスを重視する方: 再開発中のワードビレッジの資産価値が評価できる。
ブランドと予算のバランス:ワードビレッジのブランド所有と、オーシャンフロントラインほどの予算は抑えたい方。
長期保有を前提とした法人・個人の資産分散: 減価償却など節税効果と米ドル資産での資産防衛目的。
この物件が向かない方
短期での爆発的な利益を求める方: 短期転売よりも長期の安定資産や資産防衛手段としての保有の方が向く。
オーシャンフロントに強いこだわりがある方: アラモアナ通りよりも奥になるため将来的に眺望が変化するリスクあり。
管理費の上昇リスクを許容できない方: 管理費の上昇はハワイ特有のインフレの影響を受ける。





