
| 所在地 | 【HONOLULU・KAPIOLANI】1538 Kapiolani Boulevard Honolulu ,Hawaii 96814 |
| ディベロッパー | JLキャピタル |
| 竣工・完成 | 2028年末 |
| 物件タイプ | ラグジュアリコンドミニアム |
| 平米単価 | 約 260万 〜 400万円 / ㎡ |
| 専有面積 | STUDIO39㎡~/3BEDROOM 85㎡~ |
| 表面利回り | 3.0% 〜 3.8% |
| 実行利回り | 0.5% 〜 1.5% |
| 支払いプラン | 予約金:約$10,000 / 頭金:段階的に20% / 残金:完成時 |
| 共有施設 | ポルテコシェール・ロビー・プール・温浴と冷水浴・芝生・BBQ・キッズエリア・プライベートダイニングルーム・ビデオシアター・ラウンジ・テラス・ゴルフシミュレーション・パッドゴルフエリア・ドッグラン・スパ・スチームバス・サウナ・フィットネス・ヨガプラティスルーム・常時レジデンシャルマネージャー駐在 |
| 周辺施設 | ショッピングセンター:アラモアナショッピングセンター、ドン・キホーテ、パラマスーパーマーケット/アクティビティ:パワーヨガハワイ/ホテル:ルネサンスホノルルホテル& Spa/ビーチ:アラモアナビーチパーク |
ギャラリー




投資判断情報
「実質赤字」を覚悟したキャッシュフロー: 平米単価がMAX400万円になる一方、物価高ハワイで管理費が月10万円〜25万円を超えるため収益を削る。賃貸需要は極めて高いものの、家賃収入の多くは管理費や固定資産税で相殺され、手元には物件価格の1%程度の手残り、あるいは修繕積立金の増額により持ち出し(赤字)を覚悟することが必須。
キャピタルゲインへの全振り: 家賃収入での投資回収は100年以上かかる計算になるため、この物件での投資効率性は「将来さらに高い価格で売却できるか」という一点に集約される。オーシャンフロントでありかつアラモアナセンター至近という立地の希少性は、その動かない根拠。
ドル建て資産としての価値: 円安リスク対策としては多いに機能するものの、キャッシュを得ながら資産価値を待つという合理性は期待しないほうがベター。
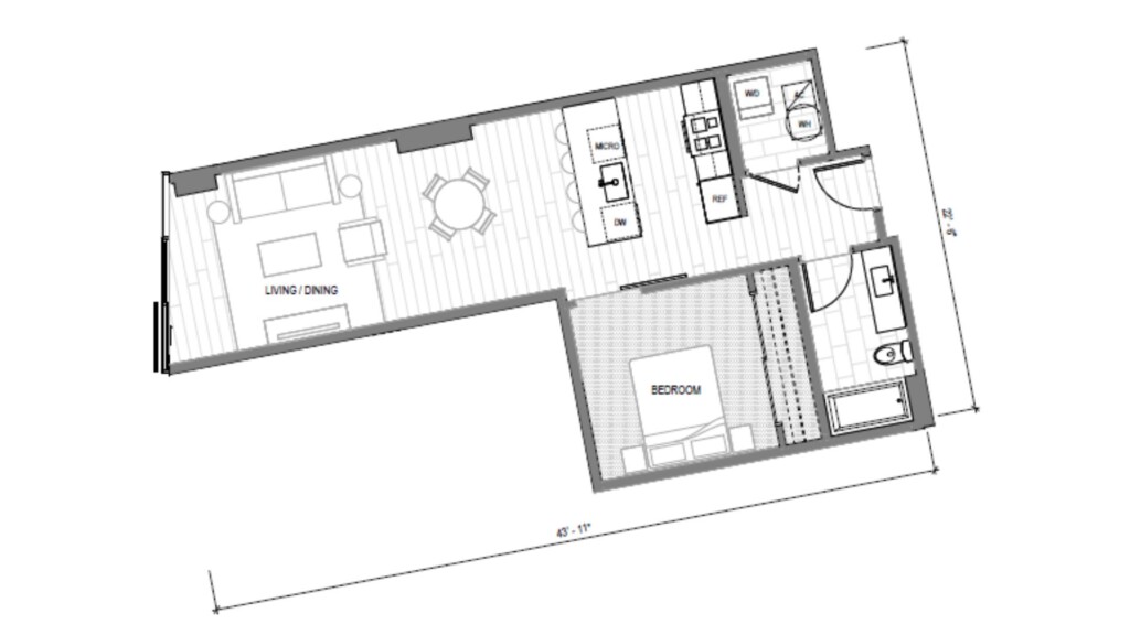
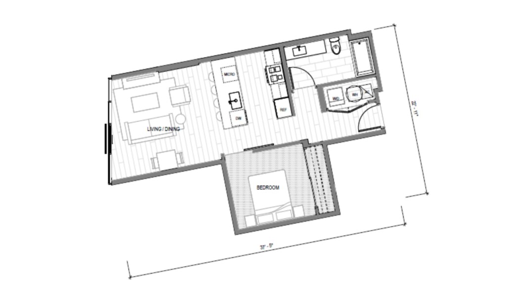
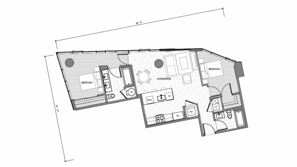
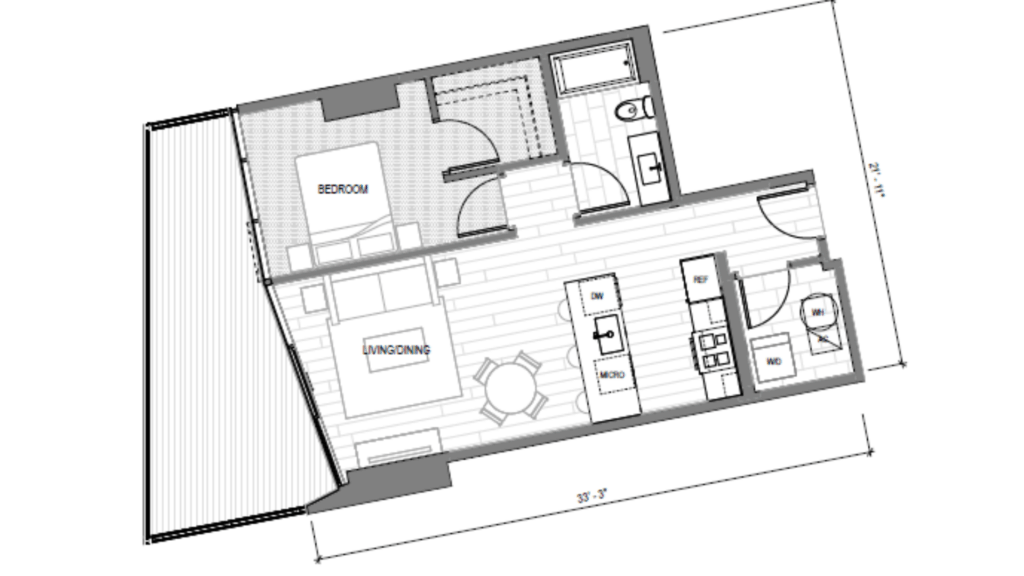
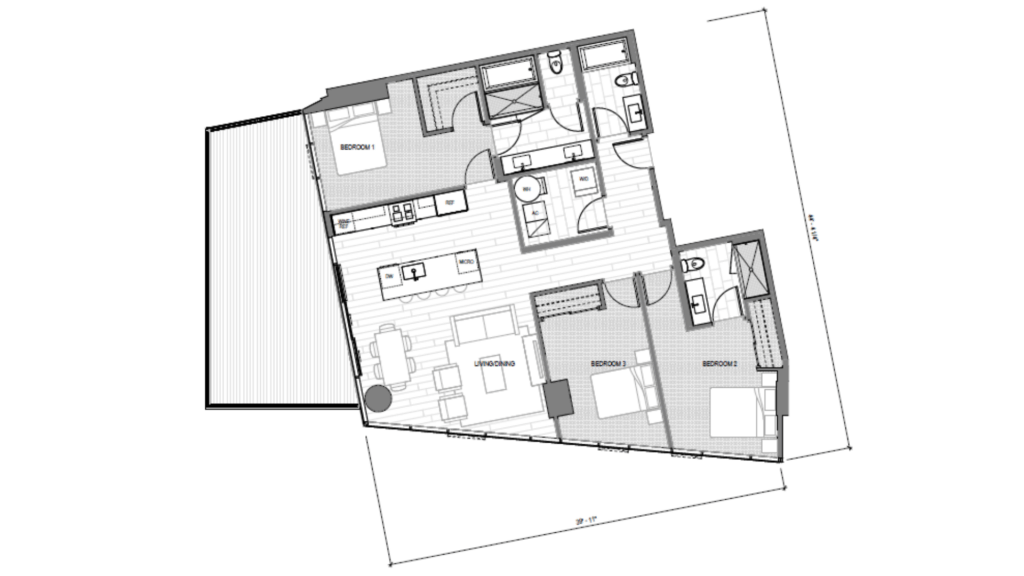
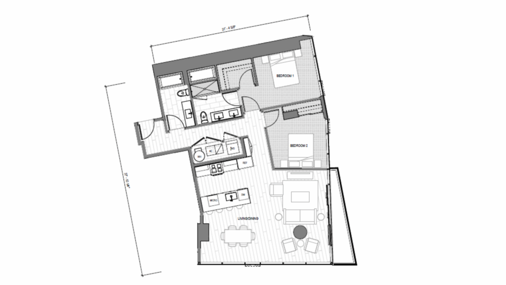
フロアプラン
Pent House & GPH L38-39
グランドペントハウス
- 専有面積:240㎡
- 価格:$2.5 M up to $6M
※タウンホームはSOLDOUT
Price Ranges
- Studios: $700,000 - $900,000
- 1-Bedroom: $800,000 - $1.5 M
- 2-Bedroom: $1.3 M - $2.4 M
- 3-Bedroom: $2.3 M - $3.5 M
物件の向き・不向き
この物件が向く方
「ハワイに別荘を持ちたい」という動機がメインの方: 管理費を「維持費」ではなく「楽しみのためのコスト」と割り切れる方。
余剰資金が数億円単位である富裕層: 毎月の赤字を気にせず、ドルの置き場所としてアラモアナの一等地を確保したい方。
リセールを期待する方: 圧倒的な空間の質をリセール時の武器にしたい方。
この物件が向かない方
「投資効率」を重視する方: 実行利回り1%以下の現実に耐えられない方。
毎月のキャッシュフローをプラスにしたい方: 管理費の高さや火災保険の高騰により、ローンを組めば確実に毎月の手出しが発生します。
高利回りに慣れている方: 「高い資本効率」を期待すると、ハワイの維持コストの高さに絶望します。
アクセス


ディベロッパー:JL Capital
ディベロッパーJLキャピタルは「スカイ・アラモアナ」や「ルネサンス・ホノルル・ホテル&レジデンス」で実績が高い、ホノルル拠点の開発会社です。
日本の大手出版社やメディアと提携し、日本人投資家が好むコンドミニアムを熟知しており、そのマーケティングを展開しています。アラモアナやカカアコのようなホノルルの特定エリアでのスピーディな開発と日本人好みのコンドミニアムを実現するセンスは極めて高いと言えます。
参考
赤字を覚悟してハワイ物件?と疑問に思われる方も少なからずいらっしゃることと思います。以下を御参考ください。
-
-
海外不動産投資で節税する全手法。出口の地雷を公認会計士事務所経験者が解説
パンフレットに踊る「利回り」や「節税」という言葉の裏側にある、本当の姿を知っていますか? ハワイでは保険料が10倍に跳ね上がり、維持費だけで簡単に利益が吹き飛ぶ。ベトナムでは利益が出ても『送金手続きの ...
続きを見る













