
お客様のご希望のお日にちで現地プロフェッショナルにお繋ぎし、ワードビレッジの他の物件や、ワードビレッジの詳細をビデオ通話をご案内しております。
ホノルルで最も注目される再開発エリア「ワードビレッジ」。その第12弾プロジェクトとして全貌が見えてきたのがマハナ・ワードビレッジ(Mahana Ward Village)です。
将来の鉄道駅に隣接する圧倒的な利便性と、現代的な都市型デザインを融合させたこのタワーは、これまでのラグジュアリー路線とは一線を画すハイコスパ・高機能な都市生活を提案しています。
| プロジェクト名 | The Mahana Ward Village(マハナ・ワードビレッジ) |
| 所在地 | 【HONOLULU・WARD VILLAGE】988 Halekauwila St Apt 1304, Honolulu, HI 96814 USA |
| ディベロッパー | Howard Hughes Corporation |
| 竣工・完成 | 2028年〜2029年頃予定 ※2026年に開発許可修正 |
| 物件タイプ | ラグジュアリコンドミニアム Studio-3BEDROOM |
| 平米単価 | 予測70万ドル-150万ドル/平米 |
| 専有面積 | 約35㎡(Studio) 〜 約150㎡(3BR)超 |
| 表面利回り | 想定3-4% |
| 実行利回り | 想定2% |
| 支払いプラン | 契約時:5% → 30日後:5% → 120日後:5% → 完成時:5% → 登記時:残金80%(一般的な例) |
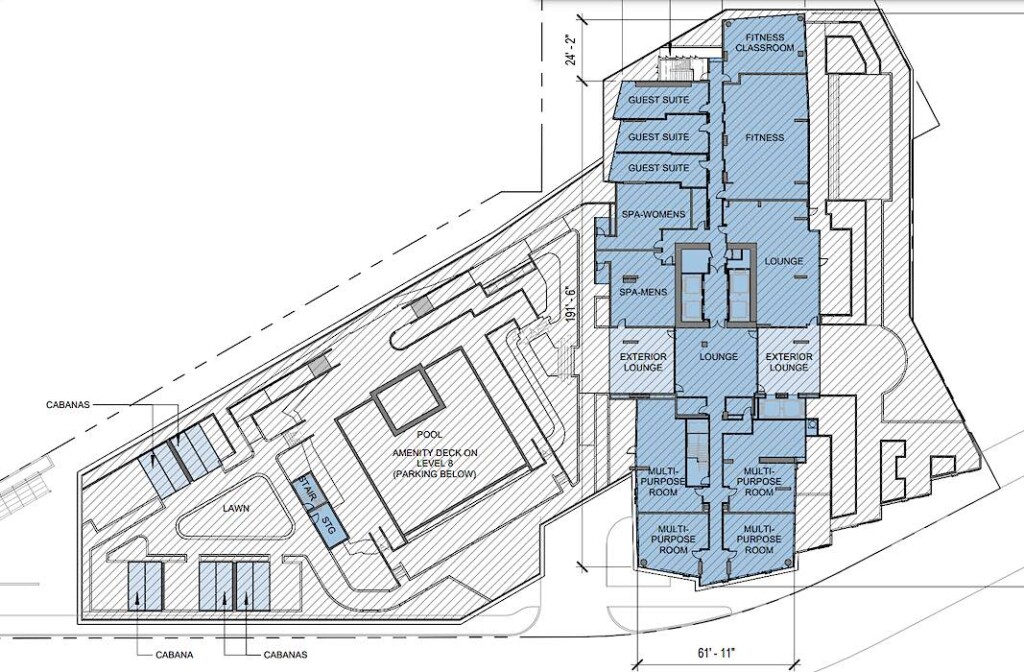
| 共有施設 | プール・炭酸入浴・BBQ・ジム・ヨガ・スパ・シミュレーターゴルフ・コワーキングスペース・ラウンジ・多目的施設・ドッグラン・キッズエリア |
| 周辺施設 | ホノルル・レール・トランジット駅に隣接予定・ホールフーズクイーン店・ビクトリアワードパーク・1Fに商業スペースの予定 |
| HOA | 周辺ワードビレッジコンドミニアムから月額1200ドルを想定 |
Contents
ギャラリー



投資家判断情報:ワードビレッジで稀少なSTUDIO
駅近の利便性:予定されているホノルルレールトランジットの駅に近いため、将来的に売却時の強みになります。このためワードビレッジ内のオーシャンフロントに位置するコンドミニアムよりも平米単価が低めで手が届きやすい価格帯
需要の高いユニット構成: LAUNIUで大人気だったスタジオや1ベッドルームの比率が高めで、単身者・単身社宅・2人世帯の賃貸需要に最適
競合物件との差別化: マハナはより最新デザイン設備・駅近のロケーションにより、隣接コンドミニアムよりも高い賃料設定、あるいは高い入居率が期待できる
マスタープランの進捗: ワードビレッジ区域内の都市計画の折り返しのフェーズにより、エリアとしてのブランド確立からインフラ整備とともに評価されやすい。
留意点・投資リスク
プレセール購入 : 一般公開前に優先枠の販売が行われ、このフェーズでの購入は含み益を確保する大きな鍵となる。
バルコニー(ラナイ)が標準化されていない: ハワイに求められやすいバルコニーを欠くユニットの場合賃借需要としてマイナスに響く可能性がある。
HCDA(ハワイ州コミュニティ開発局)スケジュール: 2026年内のHCDA公聴会を経て販売価格や販売開始時期が確定予定。
フロアプラン:Coming soon


向き不向き
この物件が向く人
利回りの現実: 2026年現在ホノルル新築コンドミニアム市場では実行利回り3%を超えるパターンは稀。米ドル資産としての資産防衛や価値保存や将来的値上がり益を重視する投資家向けと言えます。
ドル建て資産の資産防衛重視: ワードビレッジブランドコンドミニアムで出口がが見えやすい中価格帯の物件のため、円安の資産防衛と売却の際の流動性を確保したい人に向きます。
駅近の利便性:最優先する実需・賃貸オーナー 将来的に開通するスカイラインの駅に近く、車を持たない層や、利便性を重視する現地の高所得な単身・共働き層からの賃貸需要が固いと予想されます。
コンパクトで高機能なユニット: スタジオのユニット数が多く、ワードビレッジの住人というステータスがコスパ良く入手したい人に向きます。
周辺の中古物件と比較の上検討:同じ価格帯でのアアリイやエール・カカアコなどの中古物件との賃料比較で納得できる投資家
この物件が向かない方
高利回りを望む方:管理費はおよそ月額20万円が想定され、毎月のキャッシュフローで大幅なプラスを出すのは困難。現金収入のみを目的とするなら他の物件方が適しています。
ハワイらしい開放感を求める人: マハナの多くのユニットにはラナイバルコニーがありません。バルコニーに出てハワイらしい解放感やさわやかな風を感じたい人は向きません。
隠れ家的静寂を好む人:総戸数340戸と規模が比較的大きく共有施設はそれなりに混雑するため静かな環境を求める人には不向きです。
ワードビレッジのオンライン内見をご希望の方は
マハナワードビレッジは実際に建設が進行しているわけではありませんので、ホノルルに渡航いただいても内見できるわけではありません。
弊社はお客様のご希望のお日にちで現地プロフェッショナルにお繋ぎし、ワードビレッジの他の物件や、ワードビレッジの詳細をビデオ通話をご案内しております。ワードビレッジだけでなくプロフェッショナルの視点でお知りになりたい情報をお聞きになってみてください。以下よりお問い合わせをお待ちしております。